너와 나, 우리의 장

박진희 스튜디오 D

Ideas

미래의 우리의 삶에서는 과학적 기술과 세계화가 주요 이슈가 되겠지만, 사회적 관점에서 바라보면 소통과 교류가 현재보다 더욱 중요시 되어야 한다. 기술의 경우 배움을 통해 익히고 적용할 수 있지만, 소통과 교류는 몸소 경험하고 체험하지 않으면 배우고 깨우치기 어렵기 때문이다.

현재 대한민국은 메가 시티로 도심에 많은 인구가 집중되어 있다. 하지만 언젠가 도시가 수용할 수 있는 인원을 넘어서고 한계에 다다르는 순간 그 도시는 빠르게 쇠퇴하고 메마르게 될 것이다. 그에 대한 해결 방안으로 현재는 활성화되어 있지 않은 비도시지역을 활성화 하여 사람들이 자연스럽게 도시 지역을 벗어나도록 유도하는 방향으로 진행하는 것이다. 비도시지역이 사람들을 끌어들일 수 있도록 활성화 함으로써 도심의 인구 집중 현상을 해결할 수 있도록 한다.

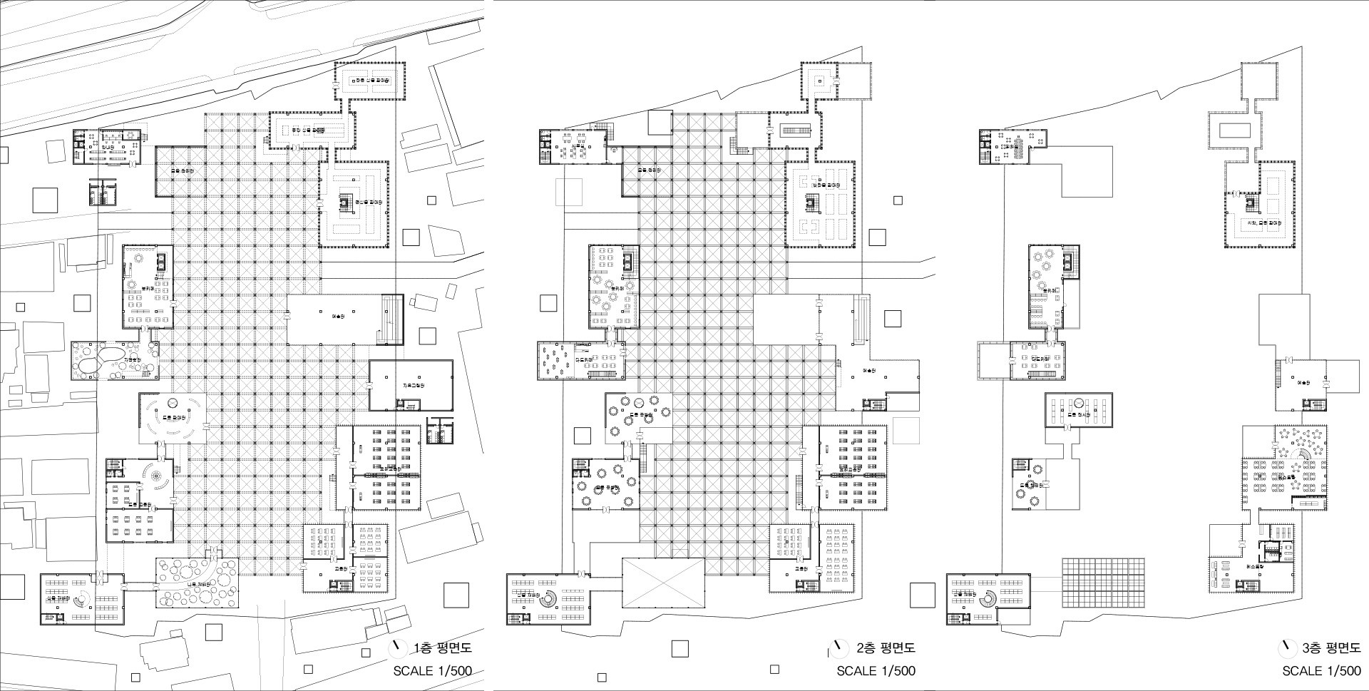
과거부터 시장은 농수산물과 화폐를 교환하는 방식으로 직접적인 거래가 일어나는 장소로 통용되어 왔다. 그러나 현재에 들어서 시장이라는 장소가 거래만을 위한 곳이 아니라 체험을 할 수 있는 곳이자 사람들과 교류를 할 수 있는 곳으로 인식을 바꾸고 변화하려고 한다. 나아가 미래에는 시장의 단순한 거래의 역할 뿐만 아니라 시장 속 여러 이벤트와 가변적인 시스템을 통해 지역 주민들이 모일 수 있는 중심지 역할을 할 것이다.

진천의 시장의 특성 중 ‘가변적인’이라는 특성이 미래의 우리가 사람들을 만나고 관계를 형성하는데 있어서 중요한 키워드가 될 것이다. 미래엔 한 곳에 정주하여 삶을 꾸려가지 않고, 정해진 장소에서만 자신을 드러내지 않으며, 직접적으로 사람들과 접촉하고 대화를 나누는 경험을 중요하게 여겨질 것이다. 따라서 가변적인 공간을 통해 미래의 우리에게 익숙하지만 낯선 경험을 만들어 주려고 한다.

Drawings