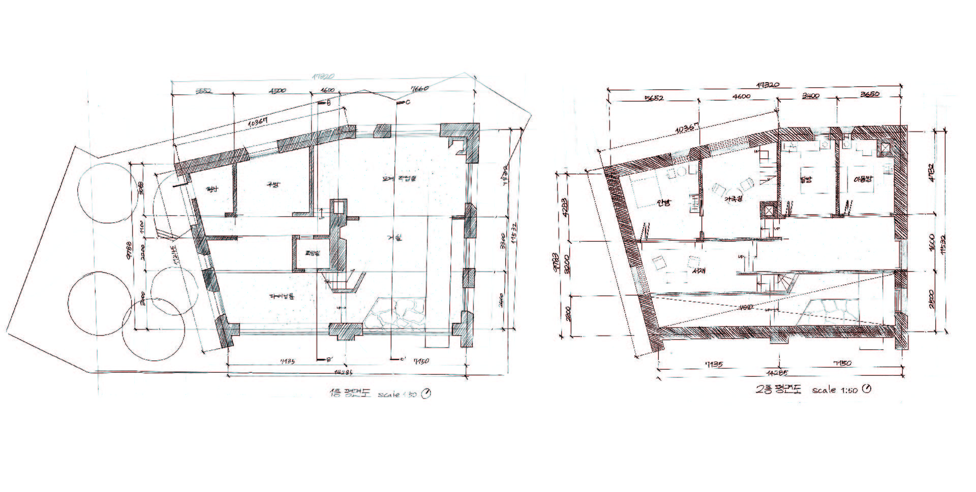
段을 오르는 집

최인영 2

Ideas

북한강이 둘러진 남양주시에 위치한 이 집은 조안면 변두리에 둘러진 자전거 도로 옆의 경사진 골목 끝자락에 북한강과 맞 닿아 있다.

이 집 마당에 있는 나무들 사이로 구불구불한 길을 따라 들어가서 주변 이웃집들로부터 내부를 보호하는 껍데기 형태의 아치형입구로 집을 들어가면, 집안의 각 공간을 단을 오르내리며 순회하게된다.

이 집에 사는 가족은 강변쪽으로 나 있는 거실과 다이닝 룸의 큰 창과, 계단을 올라 있는 각자의 방의 미닫이 창을 통해 양옆에 있는 산들 사이에 담겨진 강변의 모습을 보며 일생을 보낸다.

많은 단차들은 강변쪽으로 넓게 시야를 트여주고, 어디론가 확장한 두꺼운 외벽의 창들은 집 주변의 모습을 바라보게한다.

다양한 경험을 주는 공간인 단을 오르는 집은, 하루하루를 집을 순회하며 오르내리고 가족의 추억을 쌓아준다.

Drawings