Cluster Valley , 무심한 잉여와 절절한 결핍의 연결

김학수 스튜디오 B

Ideas

지속적인 인구감소와 고령화는 학력층의 감소로 이어졌고 도심지 내 학교 공동화 현상을 야기하였다. 이러한 흐름 속 갑작스런 COVID - 19 로 인한 펜데믹 상황은 이를 더욱 가속화 시켰다. 언택트가 일상이 되면서 우리는 학교에 가지 않고 온라인 공간에서 배우고 소통한다. 교육공간의 가상화로 실존하는 학교시설은 점차 그 존재 이유를 잃어 갈 것이다. 머지 않은 미래에 지속적으로 발생할 학교의 기능 상실은 지역을 넘어선 시대적 차원의 문제로 읽힌다.

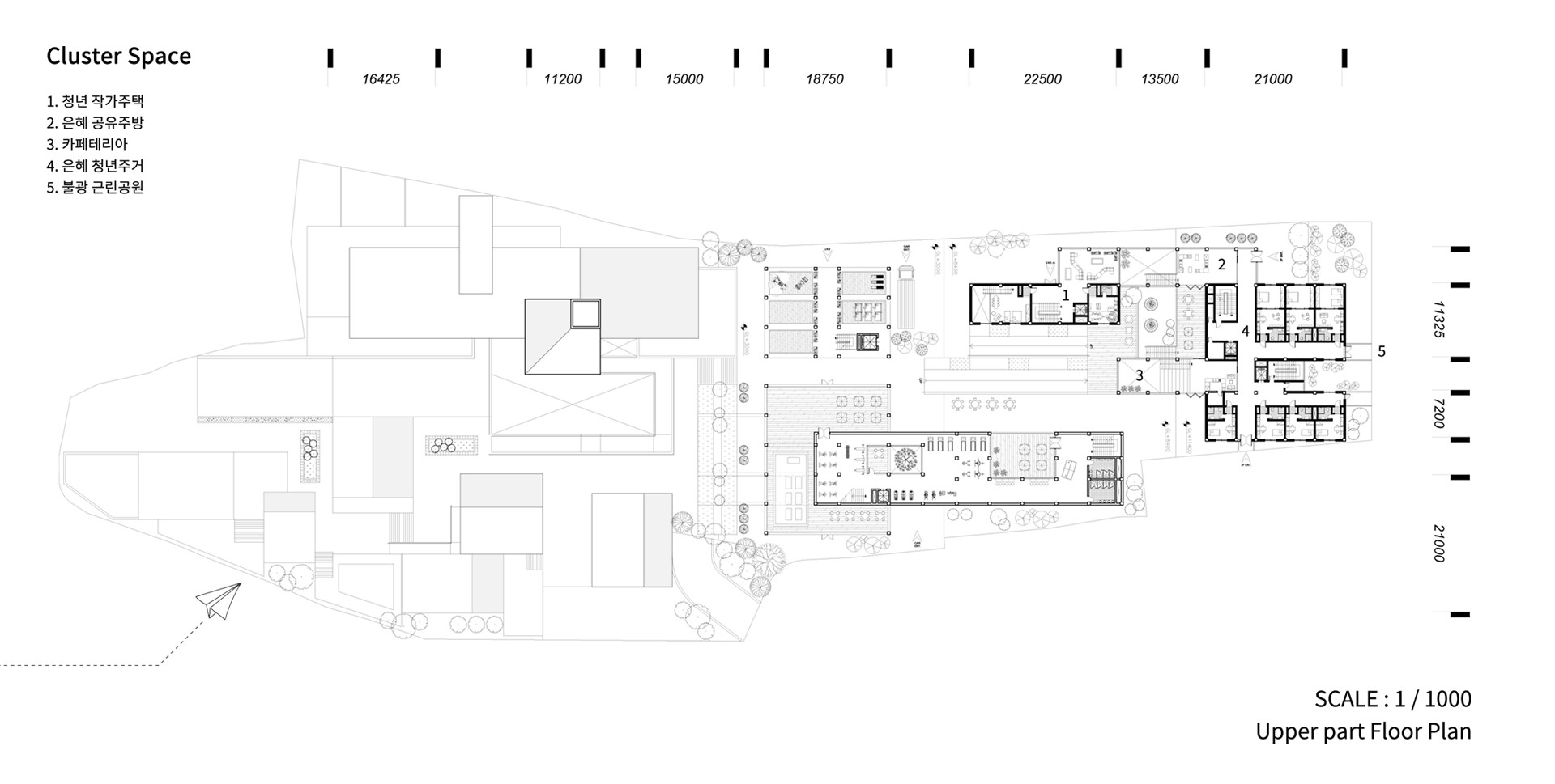
지구단위 계획의 일환으로 주거단위 별 공급되어진 학교는 고밀화 된 도심 속 이질적인 규모의 오픈스페이스를 형성한다. 학교는 아이들이 사회로 내딛는 첫번째 정서 교류의 장이자 근원지이며 공동체와 관계 맺는 사회적 공간이라는 장소성을 갖는다. 단순한 커뮤니티 시설로서의 재활용이 아닌 사회에 반드시 필요하지만 결핍되어 있는 환경과의 연결을 제안한다.

Drawings