Vinyard of Laborans

이동희 스튜디오 A

Ideas

평균을 대체하는 ai의 등장으로 사람은 평균값이 아닌 Outlier를 생산해야한다.

서로 다른 요소들이 충돌해서 만들어지는 새로운 가치인 Outlier를 생산

이를 위해 요소들이 교류와 간섭이 일어날 수 있는 Interstitial Space를 제안한다.

사이트인 구로기계공구상가는 프로그램을 담을 수 있는 블럭으로 이루어져 있지만 폐쇄적인 구조로 인해 지속가능성이 불투명하다.

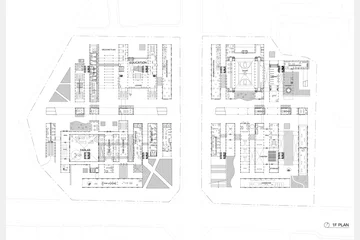
블럭 구조에 다양한 프로그램을 삽입하고 Interstitial을 만들어 프로그램 간 교류와 간섭이 일어날 수 있도록 구성

도시 스케일부터 사이트 스케일까지 대지분석을 통해 네 종류의 사용자를 특정해내고, 이들을 만족시키는 프로그램을 제공하여,

사이트에 다양한 인적 레이어를 중첩시킨다. 다양한 프로그램, 사용자가 맞물리고 교차하여, 아웃라이어를 도출할 수 있는 새로운 일터를 제공한다.

Drawings