지구별 여행

김혜원 스튜디오 A

Ideas

소중한 가족의 만남부터 이별까지

팬데믹과 1인가구 증가, 고령화 인구 증가 등의 다양한 이유로 대한민국의 반려인구 수는 기하급수적으로 늘어나고 있다. 그에 더해 동물 등록제, 입마개 의무화 등 반려동물에 대한 새로운 관점과 시각,규칙들이 늘어나고 있는 그야말로 반려동물문화의 격변기에 자리한다.

'사지말고 입양하세요!' 공장식 펫숍이 문제시 되면서 유기동물 입양이 윤리적이라는 것을 모두가 알지만 실제로 유기동물을 입양하는 과정은 쉽지 않다. 유기동물 보호소는 동물수에 비해 관리하는 봉사자가 압도적으로 부족하여 동물들이 제대로 관리되지 않고 공고기간이 끝나면 건강한 동물들도 안락사 된다. 동물 장례식도 생소하다. 유럽국가에 비해 한국은 동물권에 대한 인식이 아직 미비한 편이다.

입양사이클

안락사 없는 보호소를 만들고 동물들의 각 생태와 본성에 맞는 생활환경을 제공한다. 위생적이고 인도적인 관리로 유기동물들의 건강개선을 돕고 적극적인 입양이 가능하게 된다. 입양 전 동물들에 관심이 있는 사람들이 산책봉사, 놀이봉사등을 실시할 수 있고 예비보호자에게 필수양육교육을 실시하는 교육실도 제공한다.

생활사이클

남녀노소 누구나 반려동물이라는 연결고리를 가지면 세대를 불문한 활발한 소통이 가능해진다.

이 소통의 공간을 생활사이클에 마련하며 반려동물이 없는 사람들도 들러갈 수 있는 녹지생태공원도 조성한다. 반려생활에 필요한 물품들을 구매할 수 있고, 호텔링이나 문제행동 개선을 위한 애견유치원, 펫동반이 가능한 카페와 레스토랑등을 배치하고 동물권에 대한 교육과 행사를 정기적으로 실시해 선순환의 사이클을 만든다

이별사이클

반려동물 장례는 여전히 생소하고 편견을 가지고 있어 소중한 반려동물을 떠나보내고도 속사정을 내놓는 보호자는 많지 않은 현실이다. 실제로 반려동물의 시신을 처리하는 방법은 현재법률상 존재하지 않으며 사유지가 아닌 땅에 묻어주는것 조차 불법이다. 이런 현실속에 한 생명의 마지막까지 책임진 보호자에게 감사의 마음을 전하며 보호자에게도 펫로스 증후군 극복프로그램 등 심리상담 프로그램을 지원해 보호하도록 한다.

반려생활을 하면서 필연적으로 지나게 되는 세가지 사이클을 각각 세분화 하여 각각 전문적이고 유기전으로 연결되는 생명존중 프로그램들로 동물과 사람 모두 행복한 건축을 도모한다. 전 생애주기에 걸쳐 동물을 사랑하는 마음이 있다면 종과 나이를 불문하고 머물러 갈 수 있도록 한다.

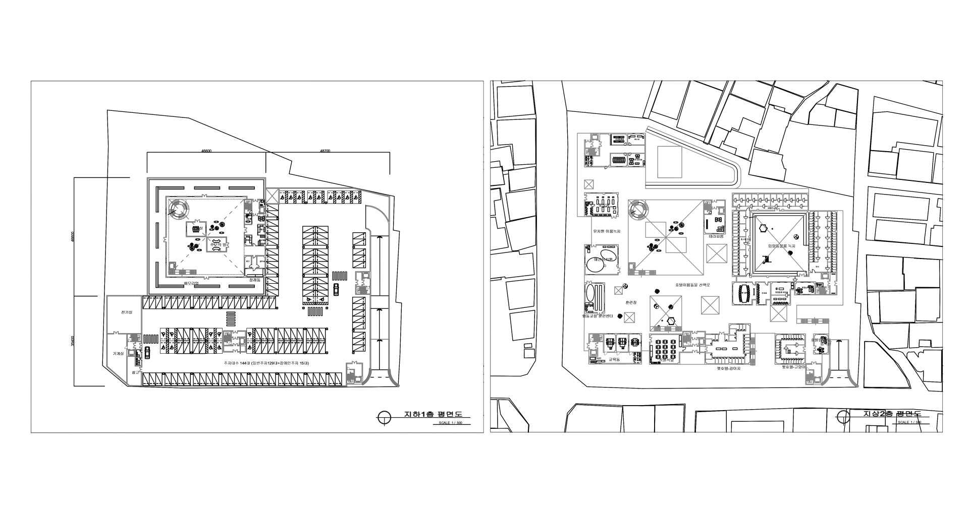
각 동물 종의 생태환경과 특성을 연구해 최적의 공간을 조성한 보호소. 그와 연계하여 입양동물의 건강을 살피는 병원으로 구성된 입양 사이클

반려인들끼리 정보를 공유하며 각종 양육 교육이 이루어질 수 있으며, 용품점, 호텔링, 훈련장 등 반려생활 필수공간을 아우르는 생활 사이클

반려동물 장례문화를 제안하며 반려자를 보호하고 심리상담을 지원하며 끝까지 책임진것에 대한 감사를 나누는 이별사이클

이 사이클들을 유기적으로 연결하는 레이어를 형성하고 다양한 내외부, 녹지공간을 조성해 도시공유공간의 역할도 해내며, 반려인이든 아니든 동물을 사랑하는 사람이라면 누구든 들러갈 수 있는 반려동물 종합 커뮤니티센터를 제안한다.

Drawings