실감하는 문학관

문성운 스튜디오 A

Ideas

사라지는 문학, 그리고 화이트큐브로만 존재하는 지금의 문학관

문학을 통해 인류는 진보해왔지만 인류는 더 이상 문학을 찾지 않고 인문학은 종언을 선언받았다. 이어령은 이러한 인문학의 종언과 정보화 시대에서 자본주의로 인한 인간성 상실에 대해 생명화시대, 생명자본주의를 통해 다시금 돌아올 수 있다고 제창하였다. 생명애, 장소애, 창조애 세 가지 Philia를 중심으로 인문학적 입장을 발전시키는 것에 기반하고 있는 생명자본주의의 마지막 키워드는 문학이다.

문학이 사라지는 사회에서 정부는 도서관을 늘리는 정책을 취하며 문학 장려를 하지만 도서관으로 문학에 근본적으로 관심을 가질까? 물론 도서관은 아키비움으로 꾸준히 변화하며 새로운 문화복합공간으로 변모하고 있다. 그럼에도 도서관으로는 문학을 살리는데 한계가 있다. 결국 도서관의 정체성의 문제이다. 도서관은 아무리 변모를 해도 정보적 기능과 보관이라는 정체성을 버릴 수 없다.

문학관의 정체성은 문학을 경험하고 실감하는 장소이다. 하지만 현재 국내의 문학관은 상설전시와 아카이빙을 통한 전시공간으로 전락하였다. 단순한 관광시설로 오염됬다. 결국 현재 문학관은 도서관으로 정체성이 변화한 것이다. 문학관의 내재되어 있던 정체성을 다시 찾아와야 한다.

실감하는 문학관 : 초연결시대 속 몰입경험을 통하여 실감세대들에게 문학을 상기시키는 장소

문학은 종수발행은 늘지만 부수발행은 줄어들고 있고 변화된 소비양상에 적응하지 못하고 아직도 활자 위주의 생산을 하고 있다. 또한 디지로그 시대를 넘어 디지털화되어 구독경제란 용어까지 등장한 현대사회에 디지털화되어 있지 않은 문학은 결국 젊은 인구대로 갈수록 인구가 적어지는데 문학 소비까지 감소하고 있는 현황이다.

문학 스트리밍 그라운드, 문학을 더 이상 활자로만 경험하는 것이 아닌 초연결시대의 실감 세대들에 맞는 경험법도 필요하다.

문학의 종류는 다양한 상황에서 국내의 큐레이팅 공간들은 단순한 분류에만 상업적으로 맞춰진 상황에 사람들은 각각의 문학을 찾아서 보지 않는 이상 무명의 문학들은 손을 대지 않게 된다. 소유보다 경험이 일상화 되는 시대에 책을 소개받고 그와 관련된 내용들을 경험할 수 있는 라이프스타일 제안 공간이 필요하다. 문학과 관련된 라이프스타일까지 제안하는 공간을 통해 실감 세대들은 문학을 쌓아야 할 교양이 아닌 삶의 일부로 받아들인다. 특히 스타작가뿐 아니라 신진작가들의 다양성까지 포함한 영감의 공간이 필요하다.

활자 위주의 문학은 시대에서 도태되고 있고 활자들만의 집합소로는 사람들은 문학을 찾지 않는다. 문학의 구독을 통해 문학에 대한 여러 방향의 스트리밍 그라운드를 제공하고 스트리밍 그라운드에서 사람들은 문학에 대한 북 토크를 참여하거나 듣는 문학을 경험하고 또는 구독을 통한 문학 추천을 받으며 매번 달라지는 문학의 희소성을 느끼며 문학 몰입의 공간을 제공한다.

그리고 2차, 3차 창작물 즉, 동인문화는 더 이상 소수의 문화가 아니라 예술 전반적인 부분에서 그 가치를 인정받고 더 많은 소비형태를 보여주기도 한다. 하지만 문학은 이러한 창작물들이 부족하고 이로 인해 원작으로의 역유입이 부족하다. 문학의 미디어화를 통해 현대인들을 유입시켜 결과적으로 문학에 다시금 돌아올 수 있는 프로그램을 배치한다.

이러한 문학관은 결국 경험을 하는 문화공간이다. 초연결시대의 문화공간은 큰 의미를 둔다. 바로 실감 세대들의 등장 때문이다. 초연결시대에 젊은 사람일수록 소유보다는 경험을 통해 하나의 문화에 접속하는 것을 더 큰 의의로 두고 있다. 흔히 말하는 ‘인스타 인증’ 또는 ‘FLEX문화’도 이러한 것에서 비롯된다. 그것을 가지는 것 보단 유행에 동참하여 경험하는 것이 더 중시되는 것이다. 문학을 아카이빙 한 전시가 아닌 공간감으로 경험할 수 있는 전시를 통해 실감 세대들은 문학을 경험한 것을 중시하게 되고 결국 문학이 더욱 가까워지게 되며 문학관은 다시금 보이지 않던 정체성을 찾아나갈 수 있게 된다.

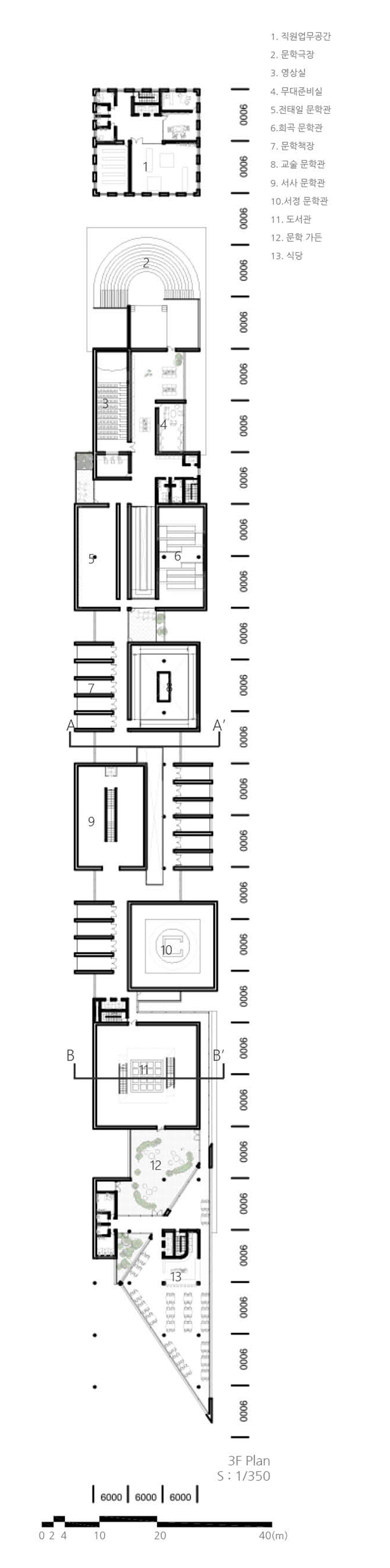
Drawings