길디집

이지후 2

Ideas

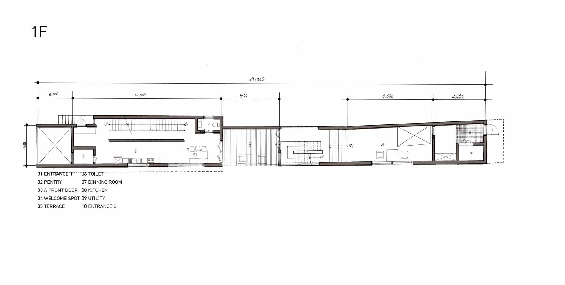
약 100m가 되는 대지 길이에 비해 폭이 좁은 대지를 따라 지어진 길디집.

대구광역시 수성구 황금동에 위치한 4인 가족을 위한 집이다.

대지가 동쪽으로는 틔여있지만, 남북 방향으로 길기에 남향의 면적이 작아 주택 곳곳에 보이드를 넣어 햇빛을 들여보내준다.

동쪽으로 오픈된 테라스를 중심으로 남북으로 건물이 분리되어 있지만 수평 동선으로 이어진다.

수직 동선은 남북 각각 하나씩 있다.

남쪽과 북쪽 모두 출입구가 있어 자녀들은 남쪽 출입구를 통해 각자의 방으로 들어갈 수 있고, 불쪽 출입구는 차량 집입구와 인접해 부모가 주로 쓰게 된다.

지하 1층은 자녀들을 위한 체육공간, 창고가 있으며 1층은 웰컴존, 테라스, 다이닝룸, 주방 2층은 거실, 자녀방 3층은 안방과 옥상 테라스로 배치되어 있다.

Drawings