Shared Room Making Home

정현진 스튜디오 B

Ideas

1인가구의 급증으로 주거의 형식은 바뀌어지고 사람들은 집이 아닌 방에서 살게되었다.

집에서 살기위해선 공간의 조합과 그에 따른 시간, 사람간의 연결이 필요하다.

코로나의 영향으로 젊은 예술가층은 불리한 입지를 갖추어가고 있고 지원이 필요한 상황이다.

시장은 도시에서 큰 면적을 차지하지만 제기능을 못하는 공간으로 이를 동시에 해결하는 프로젝트이다.

버려진 공간을 모아 활용하며 저층의 시장과 새로운 공간을 더하며 상층의 1인주거지가 계단식의 테라스형식으로

올라가 주거성과 이들간의 관계역시 확보하려는 프로젝트이다.

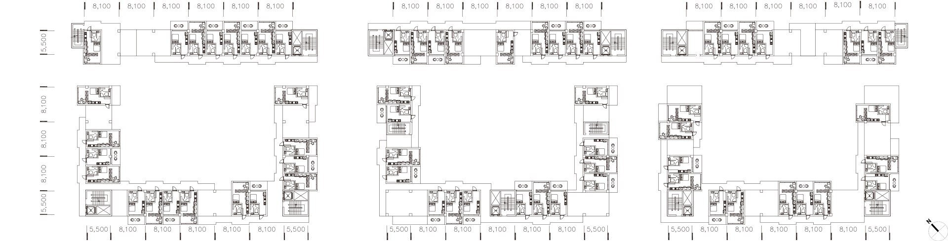
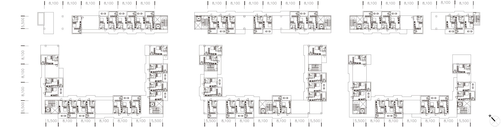
Drawings