후암동 괴테 바그너 인스티튜트

문현정 스튜디오 B

Ideas

구 프로그램의 재조합

4차산업 혁명 이후 새로운 분야, 도시가 생겨나면서, 기존의 학문이 위기에 처하고 있다. 새로운 것을 탐구하기보단, 기존의 서로 다른 문학들의 특성을 살려 융합한다면 다양한 행위와 프로그램이 생겨 날 수 있다.

현재 방문객이 불특정하고 접근하기 어려운 곳에 위치한 해외소유의 문화원을 서울시에서 지원하는 스타트업 활성 프로그램과 융합하여 가까운 주민부터 거리낌 없이 이용 할 수 있도록 하려 한다. 먼저 독일 문화원의 건축적 문제점을 해결하고 독일의 문화를 이용한 기업 살리기으로 복합 교육시설로 재탄생 한다.

크라우드 소싱을 이용한 지속 가능한 프로그램

지역 발전을 위해 단순한 거주환경 개선을 넘어 삶의 질 향상을 추구하는 사람 중심의 재생방식에 대한 요구가 증가하고 있다. 골목 및 지역의 문화를 살리기 위해 일회성이 아닌 지속 가능한 체계를 구축하여 주민들이 함께 할 수 있는 프로그램으로 지역문화를 알리고 주민뿐 아니라 외부인을 끌어들일 요소가 필요하다.

Crowdsourcing 이란 불 특정한 일반 소비자들로 부 터 기업이 필요로 하는 아이디어를 고안해내고 문제를 해결하는 방식으로 소비자와 개발자 모두 이득을 가질 수 있으며 이러한 시스템이 구축된다면 지속적으로 참여하게 될 것 이다.

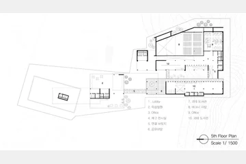
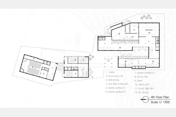
Drawings