도심 속 건전한 문화 매개 공간 형성하기

홍윤수 스튜디오 A

Ideas

초 연결사회의 심화:

초 연결 사회의 우리는 사람과 사람, 사람과 기기, 기기와 기기 즉 초 연결 사회의 모든 요소들이 IT 기술을 기반으로 하여 각각의 정보를 중점으로 연결되는 사회를 살아가고 있다. 이러한 초 연결사회는 우리에게 시간과 공간의 개념을 자유롭게 해주었고, 정보의 연결로 인하여 개인에게 더 편안한 공간과 더 알맞은 정보를 제공 및 제안하는 사회로 심화 되었다.

On-Line의 정보 습득 격차에 따른 계급화 발생:

On-Line 관계 위주의 사회에서 정보의 과잉으로 인한 개인 간 정보의 편증과 격차, 특정 직업군에 따른 정보의 독점 및 접근 배제, On-Line 상 개인의 프라이버시 침해 등 많은 문제점이 발생한다. 이러한 문제점들은 Off-Line 관계에서 사람 사이의 격차와 분쟁을 유도하고 사람 사이의 계급을 형성시킨다. On-Line 정보를 기반한 Off-Line 사회에서 사람 사이의 계급은 사회적 신뢰를 떨어뜨리고 인간성의 상실이 일으킨다. 이러한 문제점들을 일으키는 정보를 기반한 사람 사이의 계급화를 완화시키기 위해서는 사회적 구성원들이 사람이 중심이 된 건전한 커뮤니티를 구성할 수 있는 사회적 공간이 필요하다.

초 연결사회의 직주 일치 현상:

시간과 공간의 개념이 자유로워진 사회에서 사람들은 ‘창의적 장소’를 중심으로 직장과 주거지의 위치가 서로 근접 또는 일치되는 현상을 일으킨다. 개인의 라이프스타일을 반영한 시간과 장소를 자유롭게 사용할 수 있는 ‘창의적 장소’를 중심으로 새롭게 사람의 생활 반경이 설정된다.

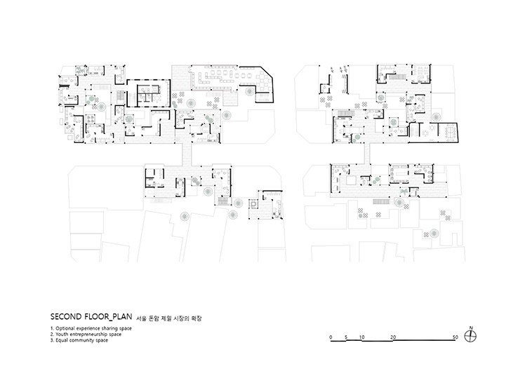
도심 속 전통 재래시장의 변화 가능성:

도심 속 전통 재래시장은 기존 주거지를 중심으로 하여 자연스럽게 형성되어진 가로 형태의 시장이다. 옛 부터 시장은 지역과 지역을 연결하는 매개공간이자 참여공간이였다. 이러한 공간적 특성으로 인해 전통 재래시장 내에는 다양하고 수 많은 행위와 공간들이 새롭게 형성되고 사라졌으며, 사람과 사람사이의 연결을 중심으로 하여 지역 공공 네트워크로서 사용되는 공공 공간이였다. 하지만 초 연결사회가 심화 되면서 현재 On-Line 상의 생활반경이 넓어지고 3,4차 산업을 기반한 상업시설을 중심으로 대형 마트 또는 온라인 마켓이 성행하면서 전통 재래시장의 입지가 줄어들며 도심 속의 퇴화 된 공간으로 방치되고 있다. 하지만 시장 공간 자체가 자연스럽게 형성된 공간이므로 이점을 활용하여 시장을 주거지 근처의 창의적 공간으로서 문화 매개 공간을 형성하여 건전한 커뮤니티 공간으로 변화 시킬 수 있다.

Drawings