NEXT OPEN AGORA

김재겸 스튜디오 A

Ideas

기존의 대형 상업시설인 홈플러스 영등포점을 해체하고, 그 구성 요소들의 도시적 역전을 통해 새롭게 조립함으로써, 도시와 사람, 사람과 사람 사이의 관계를 다시 회복할 수 있는 공간 구조를 제안한다. 오늘날의 도시는 기능별로 분화되고, 지역마다 고유의 분위기가 색깔이 형성해왔다. 이는 자원의 효율적 분배와 운영을 가능하게 하며, 도시 전체를 다양한 목적으로 사용할 수 있는 기반을 마련해주고 있다. 그리하여 사람들은 지역별로 도시를 경험한다.

이러한 모습은 도시가 유기적으로 작동하는 것처럼 보이게 만든다. 그러나 이동수단의 발달로 우리는 도시를 지점과 지점으로 해석하여 목적지를 제외한 공간들이 존재감을 잃고 있다. 하지만 의미를 상실하게된 공간들을 활용하게 된다면 도시의 관계가 다시 형성이 되며, 도시의 활력을 불러일으킬 수 있다. 그리하여 도심속 생겨나는 유휴부지를 활용하여 도시를 잠재적으로 연결(Invisible Connection)할 수 있는 공간이 필요로 한다.

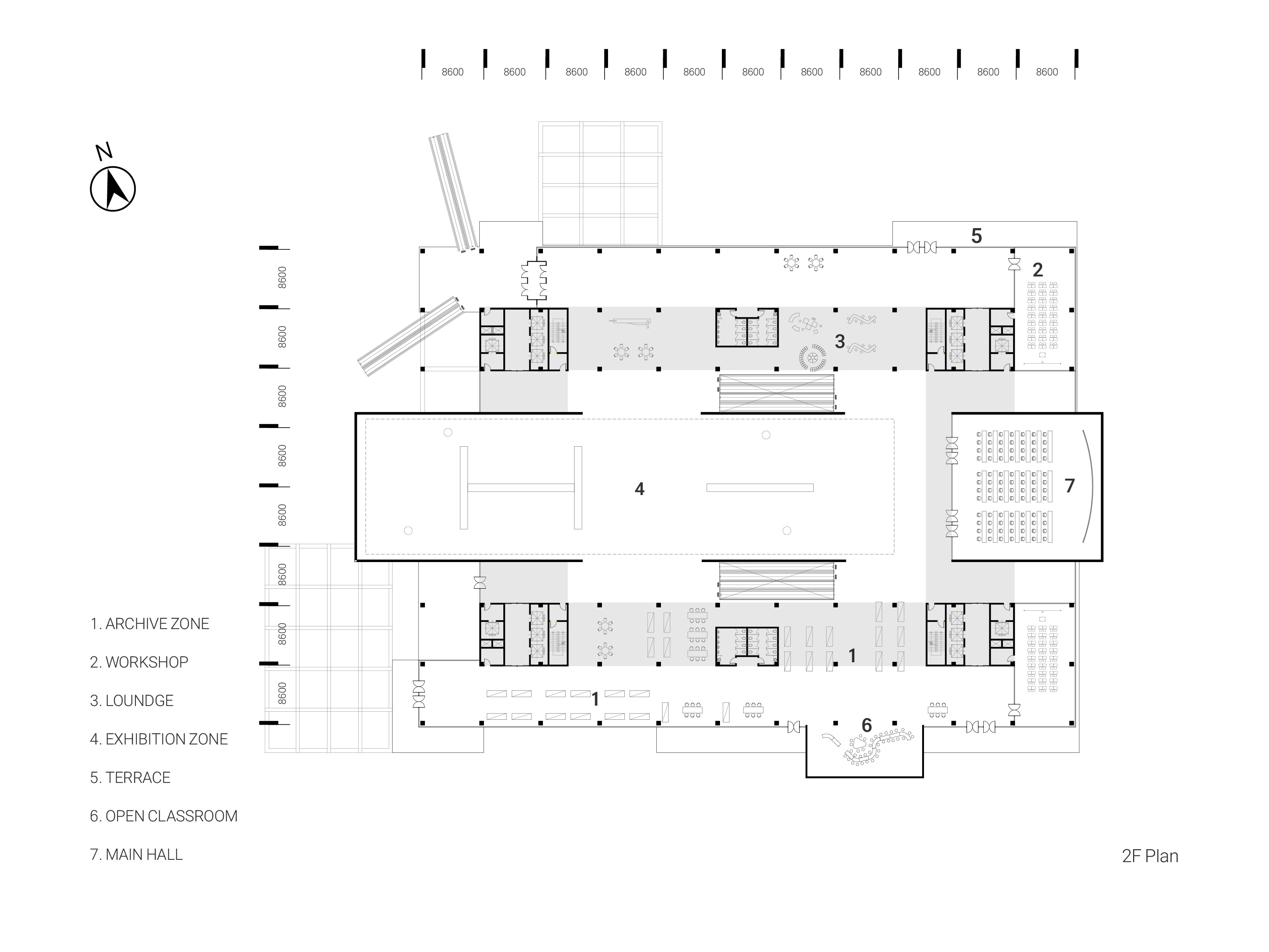
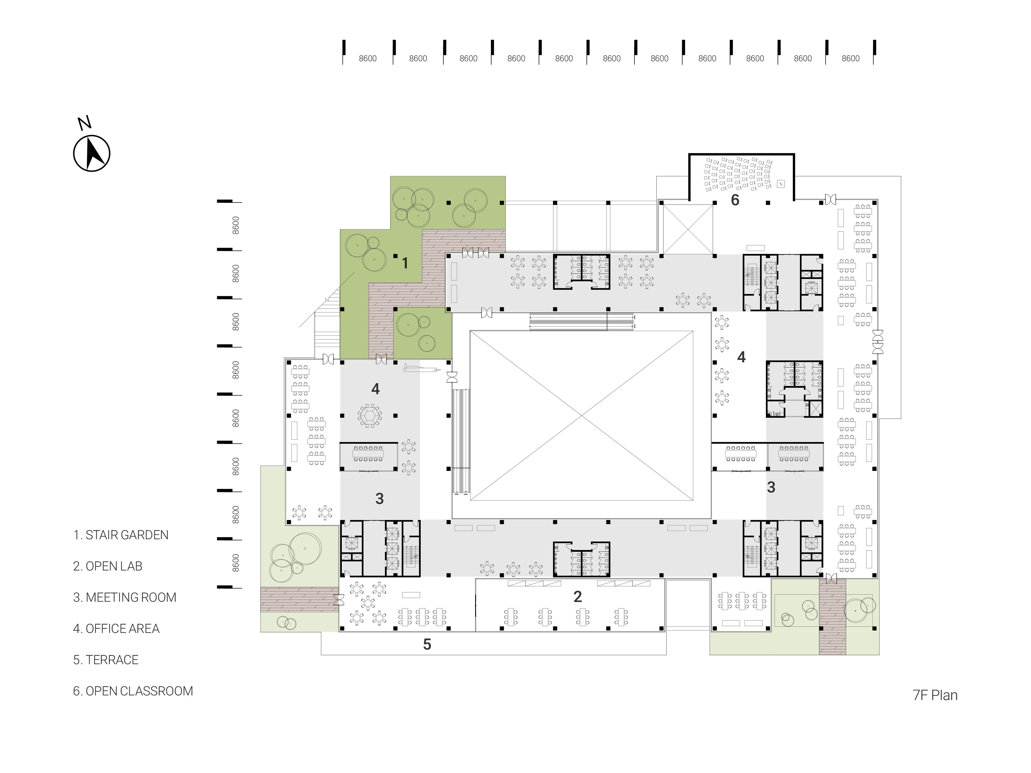
Drawings