On-Off Link Storage

최현영 스튜디오 B

Ideas

하이퍼링크 _ 유동하는 미래세대에 대응하는 4차원적 유연공간으로써의 수장고

01 PROLOGUE : 수장고 포화 상태, 새로운 공간적 요구의 발생

현재 서울시 산하 박물관·미술관의 소장품은 올해 기준 총 40만 점으로 수장률이 평균 90%로 포화 상태에 접어들었다. 수장고 포화상태가 지속되면서 수장 공간 부족으로 수장과 전시기능을 동시에 갖춘 오프 사이트형 수장고가 건립되고 있지만 이와 같은 변화는 관람자들이 장소적 거리감으로 인해 실물 작품을 향유하기 어렵도록 하며, 공간 디자인에 있어서는 작품을 보관하거나 감상하는 방식과 연결되는 새로운 공간적 요구를 발생시키고 있다.

02 APPROACH : OFF-SITE와 0N-SITE 사이, 참여를 수용하는 근미래 수장공간의 필요성

우리는 앞으로 이러한 공간과 사용자 간의 분리된 관계성과 형태적 고정성에서 벗어나 공간 내에 이루어진 공간요소, 공간을 향유하는 사용자 등의 집합체에 의하여 지속적으로 변화하는 4차원적 공간으로 바뀌어야만 한다. 공간, 사용자, 주변 환경등의 요소들 간 관계를 능동적으로 해석하고 목적에 따라 스스로 변화하는 역동적 공간의 가능성을 탐구할 필요가 있다. 관람자들은 더 이상 특정 장소에 얽매이지 않고, OFF-SITE와 ON-SITE의 경계를 넘나드는 공간이 제안되어야한다.

03 PROPOSAL : 근미래 수장공간 _ HYPER LINK

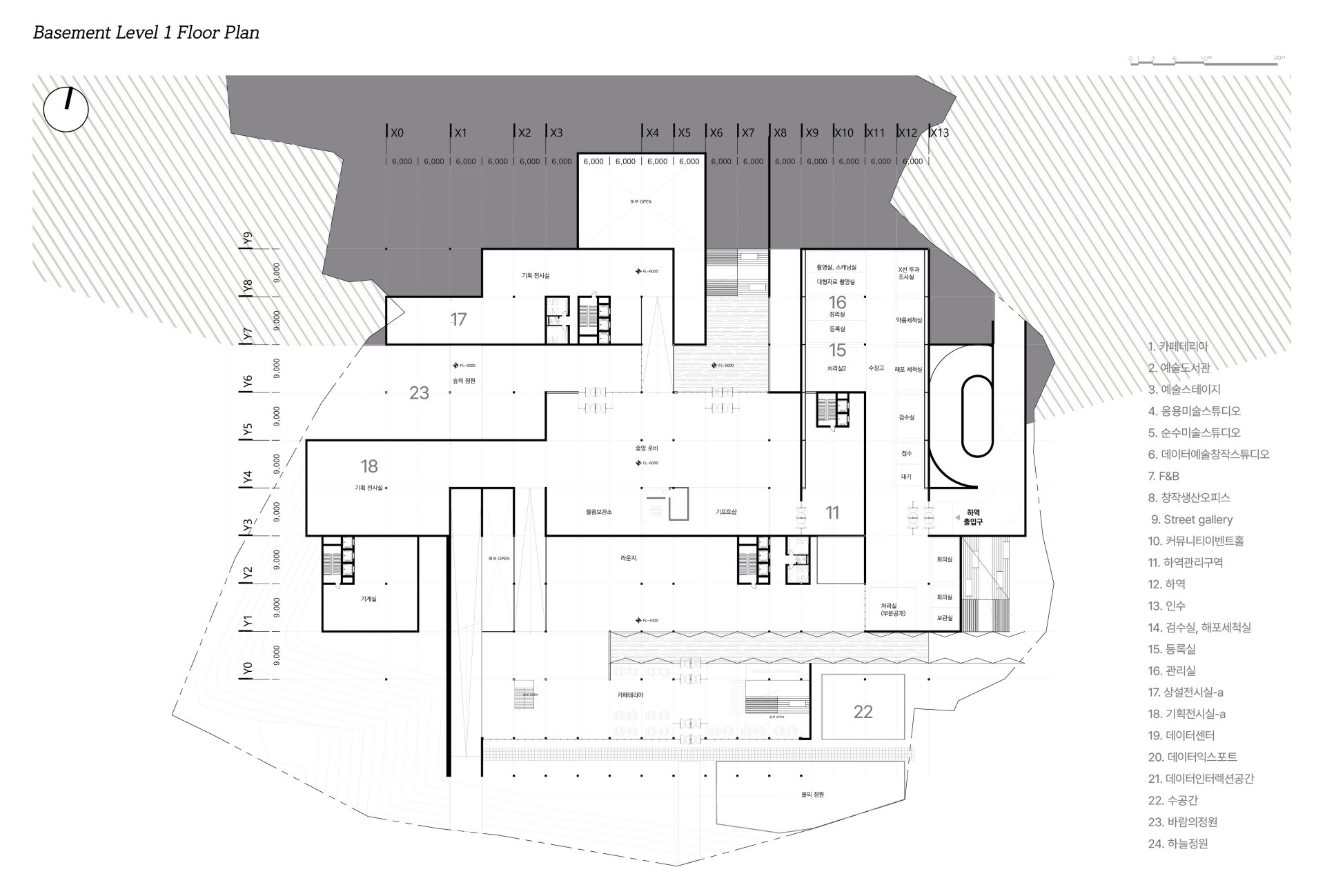
근미래의 수장공간은 데이터화된 작품들의 저장과 문화예술을 위해 모인 자기주도적 공동체들의 행위의 장으로, 미래의 변화와 개입을 수용하는 공간의 형태를 지닐 것이다. 다양한 접근과 새로운 정보를 창발하고, 공간 조직이 이에 유연하게 대응하는 링크 공간의 거점이 될 것이다. 기존 통합 수장고는 대개 특정 미술관과 그 미술관의 오프사이트 저장소 간의 일대일 관계로 운영되고 있지만, 이 방식은 여러 가지 한계를 지닌다. 특히, 작품의 보관 공간이 제한적일 때, 특정 기관에 국한된 수장고 운영은 더욱 비효율적이다. 따라서, 앞으로 포화 상태인 수장고가 더욱 증가할 상황에서 제안하는 "온오프 링크 스토리지"는 하이퍼 링크 개념을 적용하여 지역 곳곳에 위치하며, 서로 다른 기관에서 보관이 필요한 수장품들이 일정 기간 동안 교체되고 공유될 수 있도록 한다.

04 ' Willㅁ be the next storage? '

미래의 수장고는 보관과 수용을 넘어, 유동적으로 변화하고 확장 가능한 공간으로 자리 잡아야 한다. 또한 상호 이질적인 기능을 가진 공간과 공간 사이의 연결성과 인간이 보행하면서 얻는 경험의 확장성에 있어 중요한 특성을 가져야 한다. 수장고는 단순히 보존의 기능을 넘어서 작품의 일부가 되어, 관람객이 실제 공간과 미래 공간 모두에서 작품을 향유할 수 있는 융합형 공간으로 변화할 수 있다. 수집과 보존 연구 검수 등 기존의 기능에 국한되었던 수장고가 지역의 랜드 마크로 자리하며 문화의 생산, 미래 예술 데이터의 보관, 전시, 저장이 자유롭게 순환하여 도심 네트워크의 재구축 기반이 될 것이라 기대한다.

Drawings