업사이클링 클러스터

전승환 스튜디오 A

Ideas

PROTAINMENT_생산을 하나의 ‘문화’ 로 즐기다

'PRODUCE' + 'ENTAINMENT' ☵ 'PROTAINMENT'

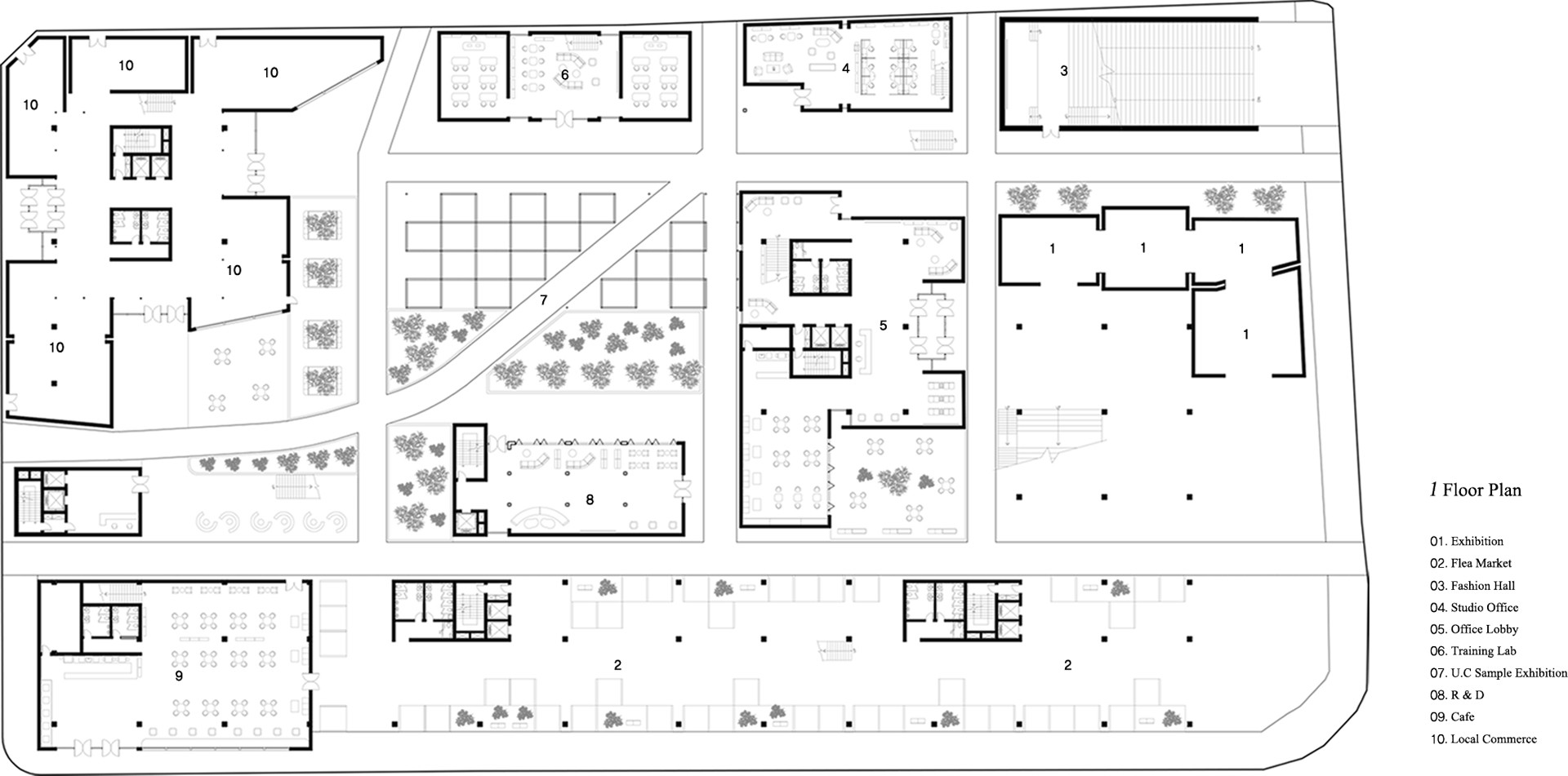
현재사회는 산업의 발달로 인해 개인맞춤형 시대로 접어듦에 따라 개인의 가치 즉, 개개인의 니즈가 중요해지고 있다. 이러한 시대 흐름에 발맞춰 온디멘드 경제 개념과 같은 방식이 떠오르면서 생산, 유통, 소비가 합쳐진 공간이 지속적으로 제시가 되고 있다. 이에 따라 기존의 생산 공간으로 자리 잡았던 공간이나 혹은 지역에 대한 미래지향적인 제시가 필요해 보인다고 생각한다. 이에 대한 방안으로 ‘생산’을 중심으로 하는 공간을 다양한 성격의 프로그램들과 복합적으로 결합된 클러스터를 구성하여 생산이 하나의 문화가 되어 즐기는 공간을 형성함으로써 지역에 새로운 생산문화거점을 제안하고자한다.

RE;BRITH_지역의 기억과 정체성을 수용한 지역상생을 추구하는 클러스터

창신동은 대부분 상업지구와 시장과 같은 소비위주의 프로그램들로 구성되어있으며, 청계천을 따라 긴 가로벽과 같은 구간이 존재한다. 의류산업의 메카라고 불리는 창신동의 정체성을 보존하면서 주변의 인프라의 장점을 활용한 대상지와의 상생관계를 통해 새로운 시너지를 가져올 수 있는 공간이라고 생각한다. 또한 창신동이 가지고 있는 지역 내 노후화와 지역계층 고령화에 대한 문제를 업사이클링이라는 기존의 정체성을 상실한 폐의류에 개개인들이 각각의 니즈에 따라 새로운 섬유를 추가로 부여함에 따라 새로운 정체성을 가지는 의류로 재탄생시키는 ‘생산참여활동‘을 통해 청년들의 유입을 지속적으로 유도하여 지역 내 이슈를 해결 할 수 있을 것으로 보여진다.

Drawings