HI-gh Five; Passage

전다희 스튜디오 D

Ideas

통로 속 마주침을 찾아, 하이파이브

급격한 기술의 발전 속에 다양한 사람들의 교차관계가 형성되고 있다. 다양한 모습들을 배척하기보다도 추구하고, 개개인의 다름을 인정하자는 목소리가 나오는 가운데 사람들은 지역, 삶, 세대 여러가지 차별점으로 인한 차이가 생겨나고 있다. 차별을 하지 않는 것이 아닌 오히려 서로를 차단하게 만드는 오늘날의 환경은 오히려 서로 괄시하도록 만들고 있다. 이런 차이들로 인한 단절은 사회를 서로의 정체성을 잃어버릴 수 밖에 없도록 형성한다. 금호동은 옛날 달동네였으나 재개발로 인해 신흥 부지가 되었다. 하지만, 일부 급격한 경사에 위치한 좁은 골목길의 주거지는 그대로 남아있으며, 고지대를 선점한 아파트들로 인해 그들 사이의 차이가 점점 벌어지고 있다. 급격한 경사차와 재개발되지 않은 공간과 재개발된 공간이 서로 섞이지 못하고 있는 금호동은 서로가 만날 수 있는 장소가 필요하다.

통로(Passage) ; 사람과 물건의 이동을 위해 마련된 공간

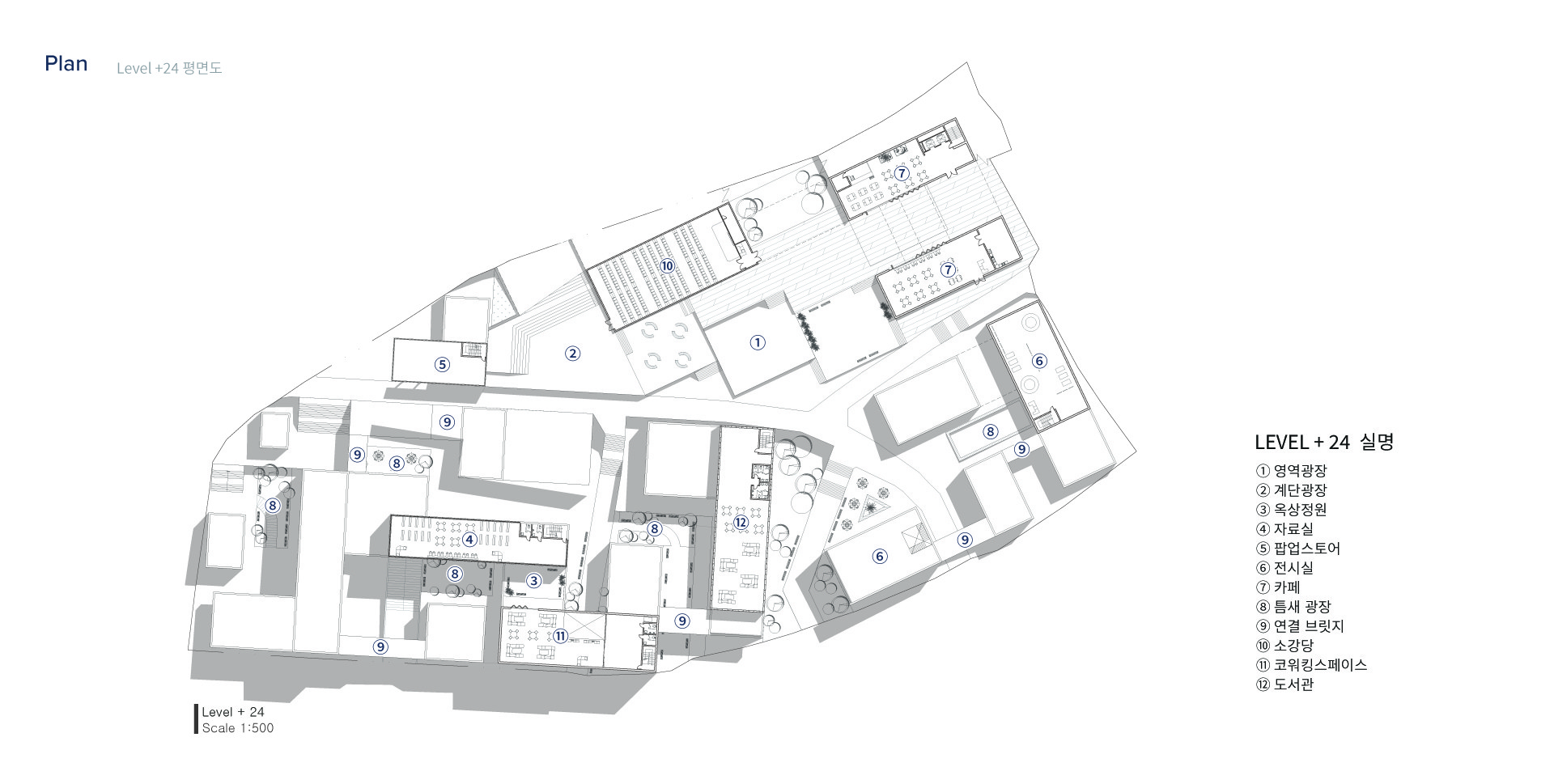
통로는 단순히 지나가는 공간일 수 있으나, 일반적으로 위치, 이용 형태에 따라서 인식이 크게 달라진다. 그저 지나가는 길이 될 수도, 휴식하는 공간일 수도, 목적성을 지닌 공간일 수도, 단절된 서로가 마주치는 공간이 될 수도 있다. 각기다른 사람들이 만날 수 있는 '통로'는 금호동의 가장 큰 문제인 단절을 해결하는 핵심 키워드가 된다. 통로가 포함하는 선(Line), 면(Face), 공간(Space)의 요소들은 다양하게 해석될 수 있다.

(Line; 길, 흐름, 교차) + (Face; 광장, 구심점) = (Space; 통로)

하이파이브에서 ‘통로’는 지나가는 공간인 한편에 머무는 공간이자 내외부에 관계하지 않고 만날 수 있는 소통하는 공간이 된다. 선적인 통로인 길과 면적인 통로인 광장을 활욯하여 길과 계단, 광장, 다양한 건물 공간들을 통해 서로 마주칠 수 밖에 없는 공간을 형성하고 있다. 다양한 요소로 인해 단절된 금호동에 손바닥 끼리 마주쳐야 소리가 나는 ‘하이파이브’ 처럼 만나고, 교류함으로써 의미를 되새기며 연결되는 광장 하이파이브를 형성한다.

Drawings