K-MEDIA

조성민 4

Ideas

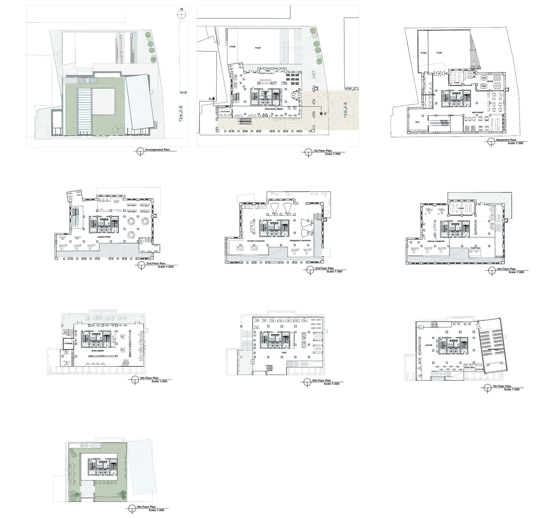
서울 중심지인 을지로에 위치한 구 미국문화원은 우리나라의 역사를 담고

있는 건물 중 하나이다. 을지로의 위치적인 특성에 의해 을지로 주변은 수많은 호텔과 관광객들이 자리잡고 있다.

우리나라의 역사를 지닌 구 미국 문화원 리노베이션의 방향을 고려해보았을 때 우리나라의 역사를 보존하고

세계적으로 알리며 체험할 수 있는 공간을 계획하고자 한다.

이번 리노베이션 프로젝트의 키워드를 '역사성'과 '문화성'으로 잡고 세계적으로 주목을 받고 있는 K-Media의

양방향적 소통이라는 특징을 건물에 담아 사람들이 양방향적인 소통을 하는 다양한 움직임들을 통해 또 하나의

새로운 문화가 재창조 되는 역할을 수행하고자 한다

Drawings