Seoul Port.

문성운 4

Ideas

서울 종로구, 중세조선에서부터 현대에 이르기까지의 모습을 담고 있는 과거와 현재가 만나는 곳이다. 이러한 과거와 현재 사이의

역사를 담고 있는 구 미국문화원은 이들 사이의 연결점이자 서로를 향하는 통로이다. 현재 서울은 관광과 여행이 꾸준히 늘어나고 있는 반면에

서울을 소개할 수 있는 대표적인 관광문화안내센터는 미비한 실정이다. 이러한 현황에서 과거와 현재의 연결점인 구 미국문화원은

여행객들에게 역사문화와 현재의 서울의 도시문화를 알려주는 도시 속 여행객들의 계류지인 Urban Port로 작용한다.

구 미국문화원은 당시의 모더니즘 양식을 잘 보여주고 있어 등록문화제로 지정되었다. 이러한 등록문화제의 가치를 리모델링이라는 이름하에 마음대로 가치훼손을 할 수는 없다고 판단하였다.

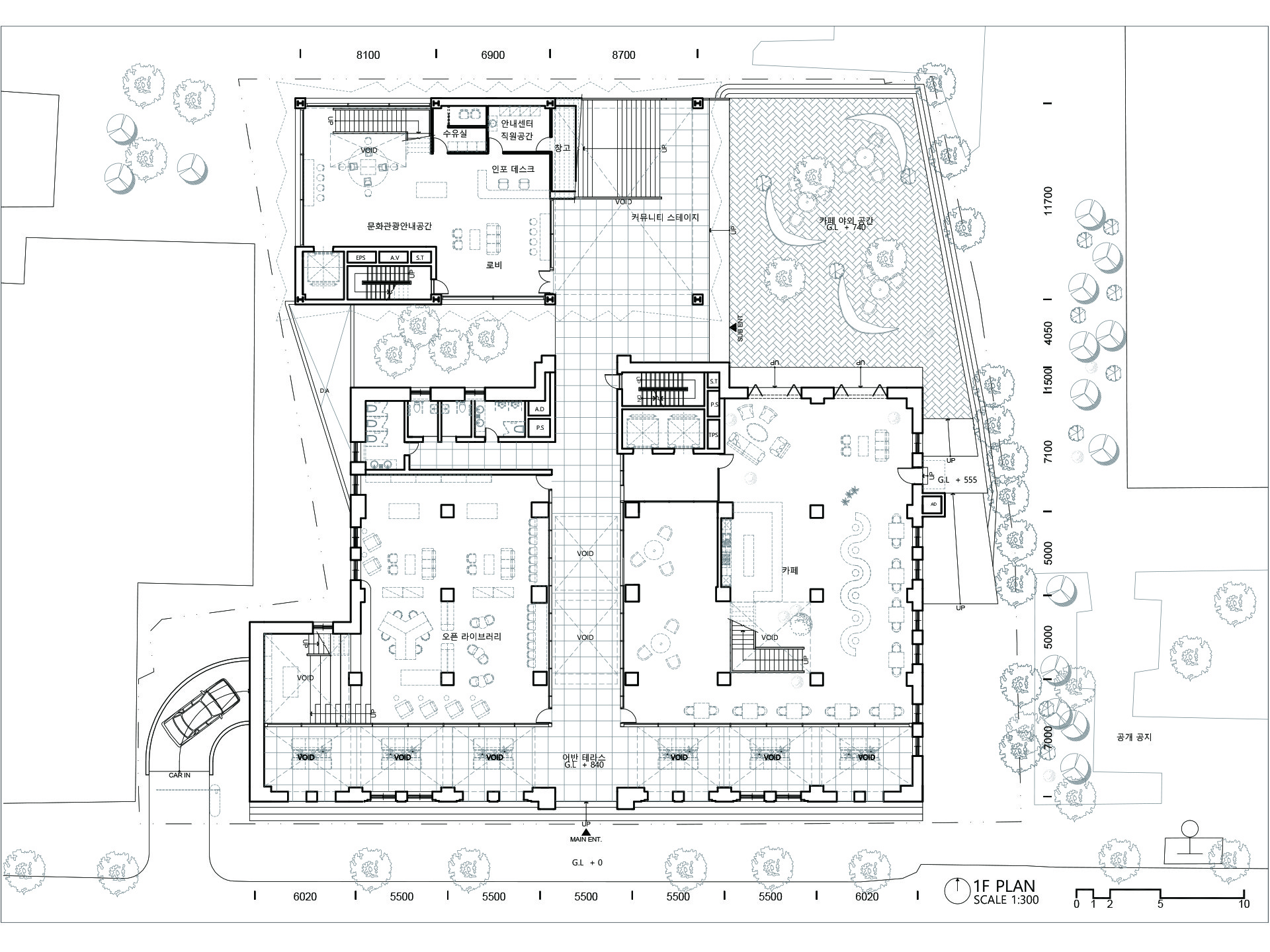
그렇기에 입면적 가치는 최대한 보전하며 내부의 평면구성의 변경과 신축동의 증축을 통해 리모델링을 제안한다.

특히 서울 종로구라는 특성상 경복궁, 덕수궁 그 외의 많은 전통유산들과 명동, 을지로, 청계천등 도시관광의 요소들 사이의 시간성을 지닌 구 미국문화원은 이들간의 연결점이고 두 맥락을 이어갈 수 있는 역사적 맥락을 보유하고 있다.

이렇기에 서울에 미비한 관광문화안내센터 프로그램을 삽입하고 신축동은 기존의 입면양식을 존중하지만 현대의 소재를 통해 증축을 하여 본관은 역사체험을 할 수 있는 공간, 신축동은 관광안내와 현대에 맞는 문화생활을 할 수 있게 배치한다.

Drawings